Maliebaan in Groenlo krijgt historische uitstraling en meer groen
Foto: PR
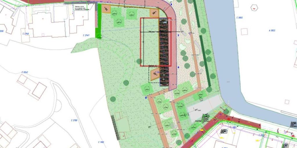
GROENLO – De Maliebaan in Groenlo wordt de komende maanden opnieuw ingericht. De plek, die intensief wordt gebruikt voor parkeren, wonen, evenementen en als speelruimte voor de nabijgelegen school, krijgt een opknapbeurt waarin historie en leefbaarheid samenkomen.
Een werkgroep van omwonenden en andere betrokkenen werkte de afgelopen tijd aan een schetsontwerp. Doel is om de historische betekenis van de Maliebaan beter zichtbaar te maken, zonder het dagelijks gebruik te beperken.
In het nieuwe ontwerp keren de oude lijnen van het verdedigingswerk terug in het straatbeeld. Het straatwerk en de parkeerplaats worden daarop aangepast, zodat de oorspronkelijke vorm beter herkenbaar wordt. Ook wordt een deel van de voormalige gracht opnieuw uitgegraven. De kanonnen, die verwijzen naar de Slag om Grolle, krijgen een duidelijkere en opvallendere plek.
Om de verkeersveiligheid te verbeteren, komt er net ten noorden van de Wheme een afsluiting voor motorvoertuigen met meer dan twee wielen. De Maliebaan blijft bereikbaar vanaf de Eibergseweg, maar wordt verder een doodlopende straat. Voor voetgangers en (brom)fietsers komt aan het einde een halfverhard pad richting de Wheme.
Daarnaast wordt ingezet op vergroening. Extra bomen moeten hittestress verminderen en zorgen voor meer schaduw, waardoor de Maliebaan in de zomer een prettigere plek wordt om te verblijven.
In een latere fase wordt gekeken hoe het vernieuwde gebied beter kan aansluiten op het schoolplein. De werkzaamheden zijn inmiddels gestart en lopen door tot en met maart 2026.
Lezersfavorieten
- Oost Gelre Vooruit stelt kandidatenlijst vast voor verkiezingen 12
- Leerlingen Pronova schenken €2.837,40 aan Stichting Vrienden SKB 8
- Spellenclub Doetinchem maakt speeldata 2026 bekend 6
- Proefsleuven gegraven op Eefseler Esch in aanloop naar woningbouw 6
- Maliebaan in Groenlo krijgt historische uitstraling en meer groen 6
- Infobord en gerestaureerde Joodse begraafplaats Groenlo officieel onthuld 6
